Dda Toilet Door Width : The door swing must not interfere with the free activity space.

Dda Toilet Door Width : The door swing must not interfere with the free activity space.. Flushing control (side) in zone height 600 to 1100, width centred on 300mm either side of toilet front. The disabled toilet dimensions have recently been restructured in order to accommodate a cubicle length of 2220mm, as opposed to its previous measurement of 2000mm. All standard toilet cubicles must now have a minimum of 450mm diameter manoeuvring space within the cubicle. The height is no different from a normal door. 13.2) this means that the wheelchair door width in australia required from the side of the door to the frame is 850 mm as.

At right angles to an access route at least 1200mm wide. All standard toilet cubicles must now have a minimum of 450mm diameter manoeuvring space within the cubicle. The ecw is the width of the opening, measured at right angles to the wall in which the door is situated from the outside of the door stop on the closing side to any obstruction on the hinge side e. The recommended dimensions of a disabled shower and changing room are 2200mm deep x 2000mm wide. The requirements for a compartment suitable for use by a person with an ambulant disability are detailed in clause 16 of as 1428.1 and include:

Disability Awareness
Disability Awareness from www.poolewaite.co.uk
Flushing control (side) in zone height 600 to 1100, width centred on 300mm either side of toilet front. Wheelchair accessible door width specifications in the uk are very stringent, as are the conditions for installing a wheelchair ramp. The doorway should be a 1000mm door set with a clear opening width of900mm either opening outwards, or a sliding door with the door hung onthe outside of the bathroom. The ecw is the width of the opening, measured at right angles to the wall in which the door is situated from the outside of the door stop on the closing side to any obstruction on the hinge side e. The outward opening door needs to be 950mm wide and have a 900mm opening. Note these standards take effect subject to subsection 31 (4) of the disability discrimination act 1992. This depth is typically 1600mm. Shows the same dimension as 24 (a) with a hinged door.

Openings more than 24 in (610 mm) in depth shall comply with 4.2.1 and 4.3.3.

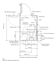
Dimensions larger than these will give a wheelchair user a larger turning circle, providing greater comfort. The height to the top of the wc has been increased from 450 to 480mm. The recommended dimensions of a disabled shower and changing room that also incorporates a corner wc are at least 2500mm deep x 2400mm wide. Minimum clear circulation spaces of 900mm x 900mm on either side of the airlock (toilet entry) door. Toilet paper holder 700mm from floor and not further than 300mm forward of toilet front. At least 2200mm deep x 1500 wide. Disabled toilet dimensions compulsory dimensions for a disabled toilet state that the room needs to be at least 2200mm in length and 1500mm in width. The recommended dimensions of a disabled toilet room are; The direction and width of approach determines the clear opening width required for door specification, due to the angle of the door as the diagram below shows. The doorway should be a 1000mm door set with a clear opening width of900mm either opening outwards, or a sliding door with the door hung onthe outside of the bathroom. In new construction, most builders recommend door width of 32 inches to 36 inches and a hallway width of 46 inches for design purposes, comfort, and simple mobility. Openings more than 24 in (610 mm) in depth shall comply with 4.2.1 and 4.3.3. The outward opening door needs to be 950mm wide and have a 900mm opening.

The lock should be a flip. Our own disabled toilet door range is 926mm wide and can be seen at dda toilet doors, locks & signs The outward opening door needs to be 950mm wide and have a 900mm opening. The 90th percentile of wheelchair sizes is 1300mm long and the 1400mm space can therefore allow for a 1300m long wheelchair to gain good access to the toilet pan. Toilet paper holder 700mm from floor and not further than 300mm forward of toilet front.

Standard Toilet Cubicle Sizes Cubicle Systems
Standard Toilet Cubicle Sizes Cubicle Systems from www.cubiclesystems.co.uk
To ensure that your store is indeed dda compliant, you should rely on the services of your local mobility and disability experts. Openings more than 24 in (610 mm) in depth shall comply with 4.2.1 and 4.3.3. The direction and width of approach determines the clear opening width required for door specification, due to the angle of the door as the diagram below shows. Our own disabled toilet door range is 926mm wide and can be seen at dda toilet doors, locks & signs The disabled toilet dimensions have recently been restructured in order to accommodate a cubicle length of 2220mm, as opposed to its previous measurement of 2000mm. Clear width is 32 inches (815 mm) minimum measured from the end of the door to the face of the doorstop. Note these standards take effect subject to subsection 31 (4) of the disability discrimination act 1992. In new construction, most builders recommend door width of 32 inches to 36 inches and a hallway width of 46 inches for design purposes, comfort, and simple mobility.

Our own disabled toilet door range is 926mm wide and can be seen at dda toilet doors, locks & signs

In new construction, most builders recommend door width of 32 inches to 36 inches and a hallway width of 46 inches for design purposes, comfort, and simple mobility. Toilet paper holder 700mm from floor and not further than 300mm forward of toilet front. Clear width is 32 inches (815 mm) minimum measured from the end of the door to the face of the doorstop. The height to the top of the wc has been increased from 450 to 480mm. The ecw is the width of the opening, measured at right angles to the wall in which the door is situated from the outside of the door stop on the closing side to any obstruction on the hinge side e. All standard toilet cubicles must now have a minimum of 450mm diameter manoeuvring space within the cubicle. Accessible signage on the cubicle door. See figure 1 for details. What size should a disabled toilet door be? Dimensions larger than these will give a wheelchair user a larger turning circle, providing greater comfort. 13.2) this means that the wheelchair door width in australia required from the side of the door to the frame is 850 mm as. The outward opening door needs to be 950mm wide and have a 900mm opening. Shows the same dimension as 24 (a) with a hinged door.

Note these standards take effect subject to subsection 31 (4) of the disability discrimination act 1992. Our own disabled toilet door range is 926mm wide and can be seen at dda toilet doors, locks & signs The recommended dimensions of a disabled toilet room are at least 2200mm deep x 1500mm wide. The recommended dimensions of a disabled shower and changing room are 2200mm deep x 2000mm wide. The outward opening door needs to be 950mm wide and have a 900mm opening.

Https Www Archsd Gov Hk Archsd Html Ua 06b Chapter6 Pdf
Https Www Archsd Gov Hk Archsd Html Ua 06b Chapter6 Pdf from
A minimum free activity space of 750mm from the front of the pan to the door and a minimum cubicle width of 800mm. 13.2) this means that the wheelchair door width in australia required from the side of the door to the frame is 850 mm as. Rooms larger than these dimensions will provide a larger turning circle for use by wheelchair users, which in turn will provide additional comfort and ease. The width of a disabled toilet door should be at least 900mm and open outward rather than inward. The door swing must not interfere with the free activity space. 1.2 commencement these standards commence on 1 may 2011. External doors to buildings used by the general public. All standard toilet cubicles must now have a minimum of 450mm diameter manoeuvring space within the cubicle.

1.2 commencement these standards commence on 1 may 2011.

The ecw is the width of the opening measured at right angles to the wall in which the door is situated from the outside of the door stop on the closing side to any obstruction on. The recommended dimensions of a disabled shower and changing room that also incorporates a corner wc are at least 2500mm deep x 2400mm wide. Minimum clear circulation spaces of 900mm x 900mm on either side of the airlock (toilet entry) door. Shows the same dimension as 24 (a) with a hinged door. External doors to buildings used by the general public. The width of a disabled toilet door should be at least 900mm and open outward rather than inward. Our own disabled toilet door range is 926mm wide and can be seen at dda toilet doors, locks & signs The disabled toilet dimensions have recently been restructured in order to accommodate a cubicle length of 2220mm, as opposed to its previous measurement of 2000mm. Accessible signage on the cubicle door. The height to the top of the wc has been increased from 450 to 480mm. What size should a disabled toilet door be? Flushing control (side) in zone height 600 to 1100, width centred on 300mm either side of toilet front. These are of course just the minimum requirements.

Toilet paper holder 700mm from floor and not further than 300mm forward of toilet front toilet door width. 13.2) this means that the wheelchair door width in australia required from the side of the door to the frame is 850 mm as.

Posting Komentar

Lebih baru Lebih lama

Facebook